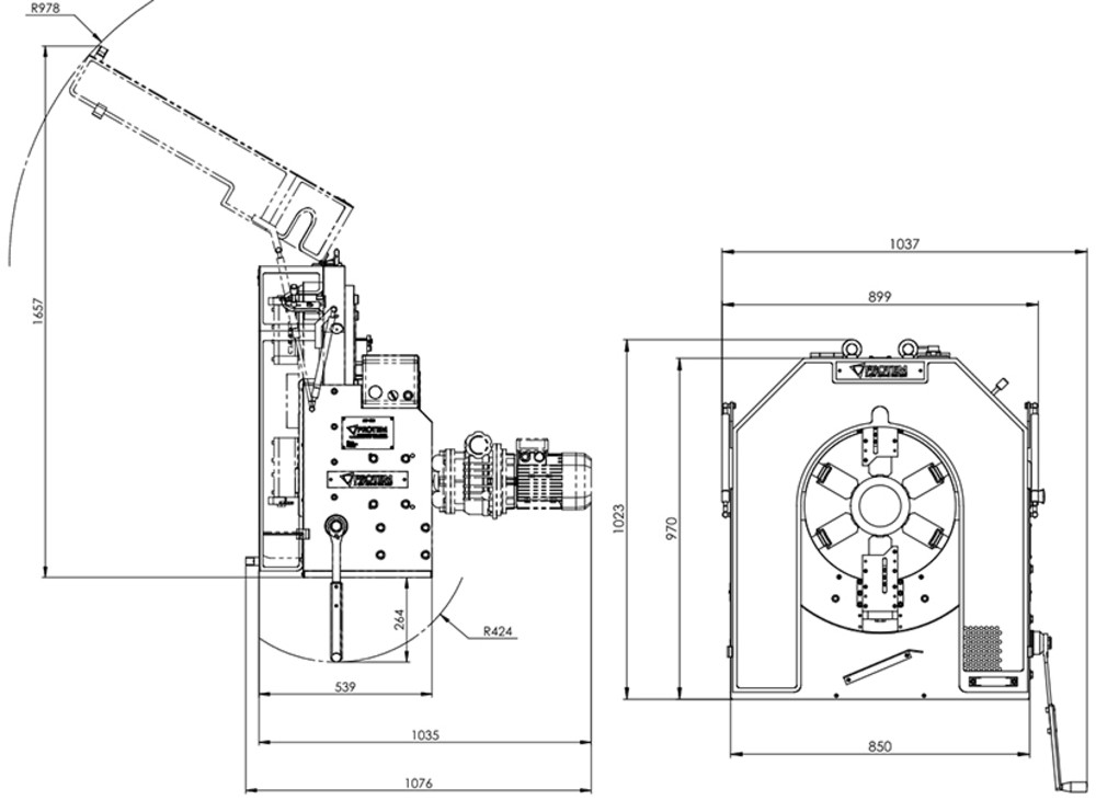
168.3 mm (6.63") ID
420 mm (16.54") OD
La machine MF420 est conçues pour couper et chanfreiner en une seule opération des tubes dont les Ø extérieurs vont de 168.3 mm (6.626') à 420 mm (16.535'). Les machines MF PROTEM permettent d‘obtenir des préparations à la soudure parfaites.
